Vuselela PowerFluid CFB Project, South Africa
Weight:560 tons
Duration:September 2024 – March 2025
Project Name:Vuselela PowerFluid CFB Project
Location:South Africa
Client:ANDRITZ AG
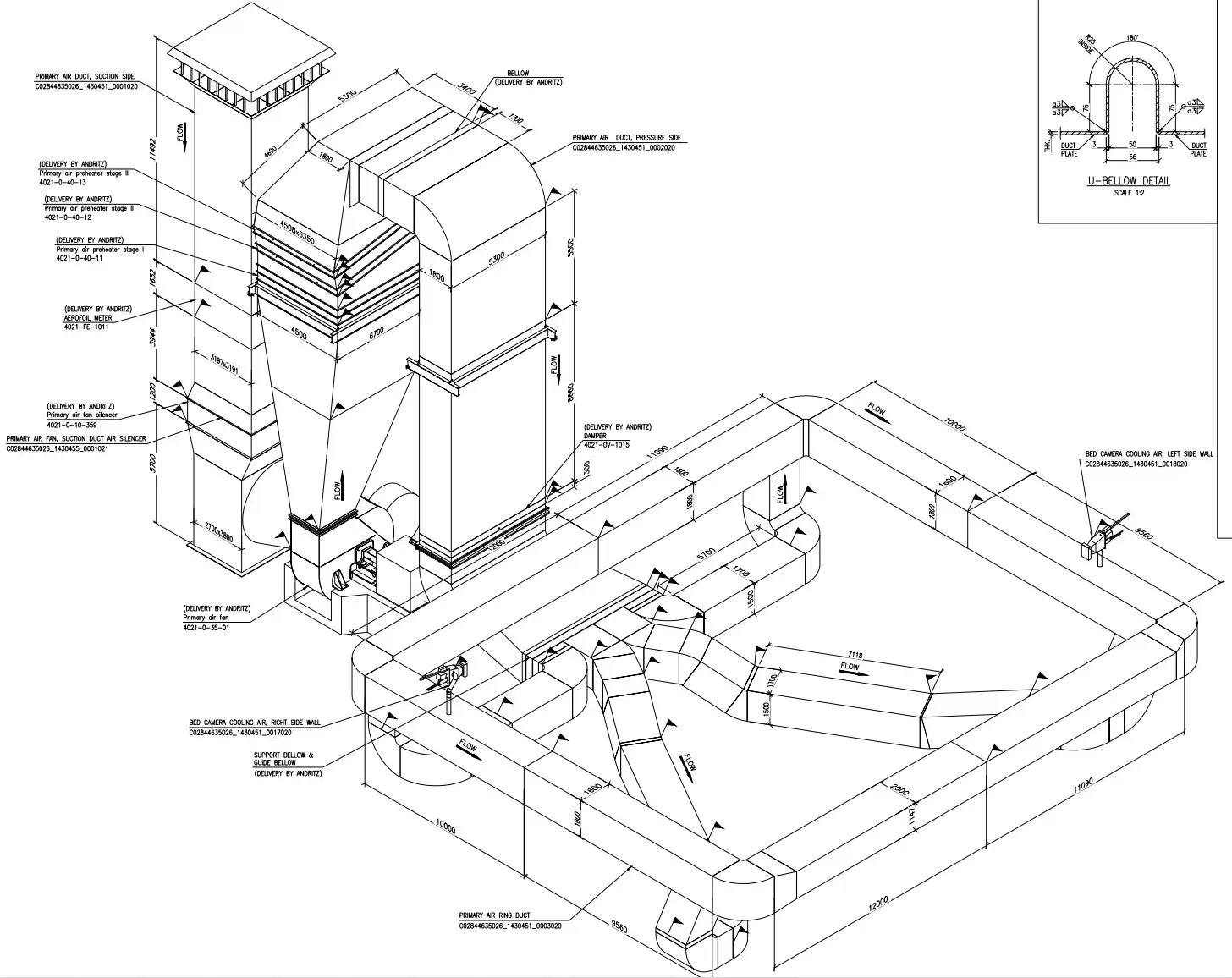
Project:Fabrication and supply of flue gas ducts, air ducts, silos and related structural components for a circulating fluidized bed (CFB) boiler system.
- piping systems
- Fluidizing air duct systems
- Flue gas duct systems
- Flue gas stack
- Recirculated flue gas ducting
- Coal bunker, sand bunker and limestone bunker
- Ash conveying troughs
- Raw materials compliant with GB standards
- Welding in accordance with EN1090-2 standard
- Steel structure and plate fabrication with workshop trial assembly
- Surface coatings
- Packaging suitable for 40’GP containers and flat rack transportation
- Delivery term: EXW
















